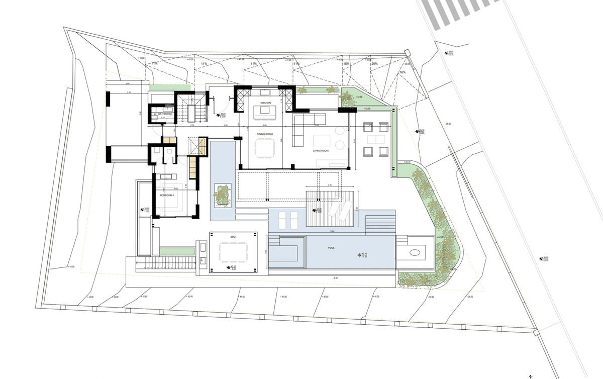
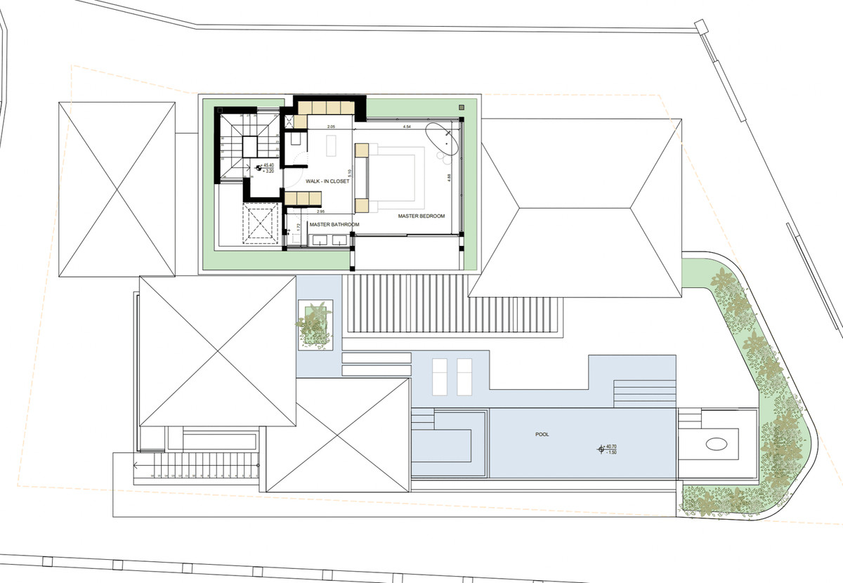
Gelegen in het hart van Nueva Andalucía, in de befaamde Golfvallei, wordt dit exclusieve perceel en project omgeven door prestigieuze golfbanen zoals Las Brisas, Los Naranjos en Aloha Golf Club. De locatie biedt perfecte toegang tot Puerto Banús, Marbella en het strand, en combineert rust met gemak. Villa Hayami, een project van Japandihome en ontworpen door het gerenommeerde architectenbureau Nmobe, vertegenwoordigt de perfecte combinatie van hoogwaardige architectuur en verfijnde elegantie. De villa is verdeeld over drie verdiepingen en beschikt over vijf prachtig ontworpen slaapkamers, elk met een eigen en-suite badkamer, in totaal zes badkamers en een extra gastentoilet. Met 525 vierkante meter aan verfijnde woonruimte toont het ontwerp natuurlijke materialen en elegante afwerkingen die een tijdloze stijl uitstralen. De buitenruimtes zijn al even indrukwekkend, met een terras van 300 vierkante meter met een zwembad, jacuzzi, stijlvolle lounge en barbecue, ideaal om te ontspannen in de zon of gasten te ontvangen met het adembenemende uitzicht op de iconische berg La Concha van Marbella. Het project beschikt over een goedgekeurde bouwvergunning.
Slaapkamers: 5
Badkamers: 7
Woonoppervlak: 953m²
Leefruimte: 525m²
Zwembad: yes
Tuin: yes
Parking: yes
Cooling:
Opslagruimte:
Lift:
Bouwjaar: 2026
Verdieping: Ja
| GEBIED |
|---|
| Zwembad: privé Klimaatregeling: airconditioning, centrale verwarming Uitzicht: zee, bergen, golf, tuin Functies: Prive Terras, berging, ensuite badkamer Keuken: volledig ingericht Tuin: privé, aangelegd Beveiliging: alarmsysteem Parkeergarage Categorie: Golf |
Vul het onderstaande formulier in om meer informatie over deze nieuwe ontwikkeling te ontvangen. (* zijn verplichte velden)
U kunt ook contact opnemen met het kantoor via e-mail or phone:
+34 952 830 378 / +34 677 670 480
Vergeet niet om akkoord te gaan met ons privacy beleid