Te koop Middle Floor Apartment Costa Del Sol Málaga Centro € 1.175.000,-

Málaga Centro

Vanaf € 1.175.000,-

BESCHRIJVING

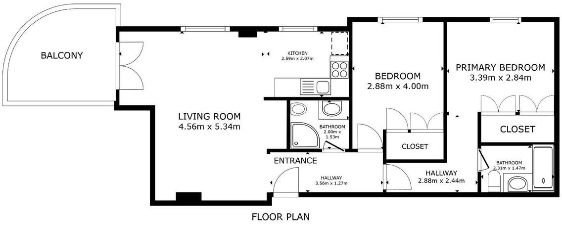
Dit schitterende en luxe nieuwbouwappartement heeft een woonoppervlakte van maar liefst bijna 90 m². Het beschikt over twee ruime slaapkamers, waarvan één met een eigen badkamer. Hier kunt u optimaal genieten van het comfort en de privacy die u verdient. Beide slaapkamers zijn voorzien van ruime inbouwkasten. De lichte woonkamer biedt direct toegang tot een prachtig terras met een spectaculair, open uitzicht op de Alameda Principal. Ideaal om te genieten van belangrijke gebeurtenissen, zoals de Heilige Week, of gewoon om buiten te ontspannen. De designkeuken, volledig uitgerust met de modernste apparatuur, zal iedere fijnproever bekoren. Grote ramen zorgen ervoor dat er in elke hoek natuurlijk licht binnenstroomt, waardoor er een warme en uitnodigende sfeer ontstaat. De locatie is ongeëvenaard: op slechts een steenworp afstand van de iconische Calle Larios heeft u gemakkelijk toegang tot een verscheidenheid aan winkels en toonaangevende merken, evenals alle belangrijke bezienswaardigheden van de stad. Dit appartement onderscheidt zich niet alleen door zijn esthetiek, maar ook door zijn geavanceerde technologie. Met geïntegreerde domotica voor afstandsbediening en domotica, en een onafhankelijk aerothermisch systeem voor verwarming, koeling en warm water, geniet u hier van een hoge energie-efficiëntie en duurzaamheid. Hoogwaardige afwerkingen van Porcelanosa garanderen een moderne en elegante stijl tot in de kleinste details. Met onder andere een ruime parkeerplaats en een extra berging is dit appartement een unieke kans die u niet wilt missen.

Responsive image
85m²
Responsive image
2
Responsive image
2
Responsive image
no
Responsive image
85m²
Responsive image
2
Responsive image
2
Responsive image
no

Slaapkamers: 2

Badkamers: 2

Woonoppervlak: 85m²

Leefruimte: m²

Zwembad: no

Tuin: no

Parking: no

Cooling:

Opslagruimte:

Lift:

Bouwjaar: 2023

Verdieping: Nee

GEBIED
Ligging: Stad, Commercieel gebied, Strandzijde, Haven, Dichtbij haven, Dichtbij winkels, Dichtbij zee, Dichtbij scholen, Dichtbij jachthaven Orientatie: Zuidoost Staat: uitstekend, recent gerenoveerd, recent gerenoveerd Klimaatregeling: centrale verwarming Uitzicht: Stedelijk Eigenschappen: Overdekt terras, Lift, Uitgeruste inbouwkasten, Nabij vervoer, Privé terras, Berging, Badkamer en suite, Dubbele beglazing, Nabij een kerk Keuken: volledig ingericht Beveiliging: Gated Complex Parkeren: ondergronds Hulpprogramma's: elektriciteit, drinkwater Categorie: Koopje, Wederverkoop, Hedendaags

AANVRAAG MEER INFORMATIE

Vul het onderstaande formulier in om meer informatie over deze nieuwe ontwikkeling te ontvangen. (* zijn verplichte velden)

U kunt ook contact opnemen met het kantoor via e-mail or phone:
+34 952 830 378 / +34 677 670 480

STUUR ONS EEN BERICHTJE


Vergeet niet om akkoord te gaan met ons privacy beleid



Alternatieven

[alt]

Te koop Gelijkvloers appartement Costa Del Sol Cabopino € 1.199.000,-

Prijs € 1.199.000,-

Meer informatie
[alt]

Te koop Gelijkvloers appartement Costa Del Sol Fuengirola € 1.150.000,-

Prijs € 1.150.000,-

Meer informatie
[alt]

Te koop Middle Floor Apartment Costa Del Sol Fuengirola € 1.100.000,-

Prijs € 1.100.000,-

Meer informatie
[alt]

Te koop Middle Floor Apartment Costa Del Sol San Pedro De Alcántara € 1.075.000,-

Prijs € 1.075.000,-

Meer informatie

Nieuwbouw Spanje maakt gebruik van cookies. Klik hier voor meer informatie. Sluit
x