Te koop Vrijstaande Villa Costa Del Sol Puerto De La Torre € 495.000,-

Puerto De La Torre

Vanaf € 495.000,-

BESCHRIJVING

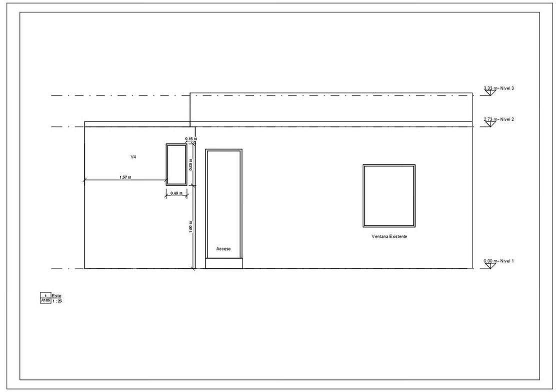
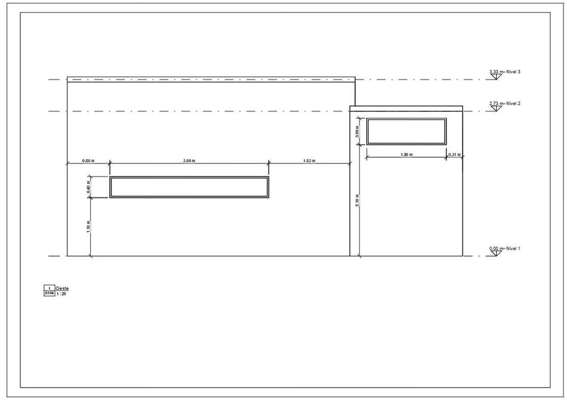
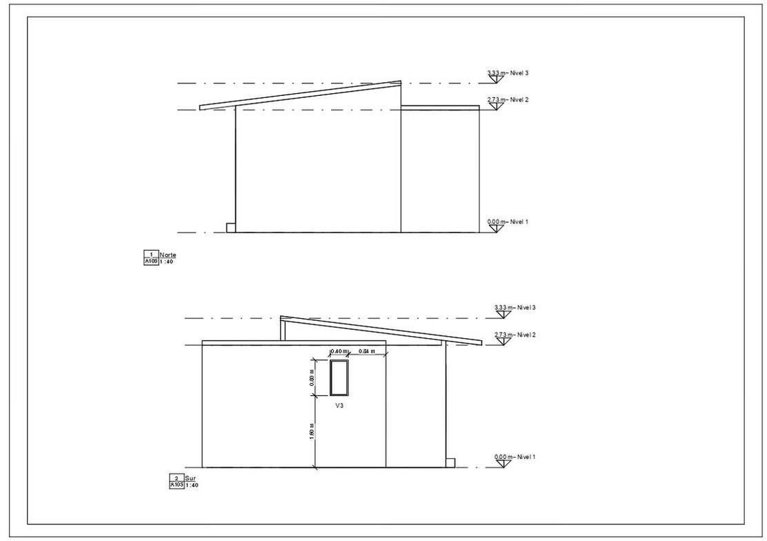
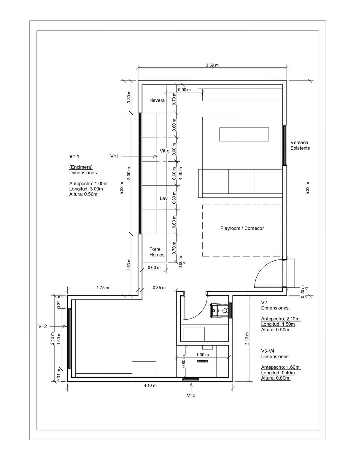
Contemporary design in the middle of nature We present a single-family house located in Arroyo del León, Puerto de la Torre (Málaga). A project that harmoniously combines modern architecture, functionality and connection with the natural environment. Built on one floor and with an interior area of approximately 36 m², this home has been designed to offer comfort, efficiency and style. Its distribution includes: Open kitchen with integrated dining and living room. Master bedroom plus an additional versatile space Spa-like bathroom with micro-cement finishings Natural lighting and interior design with noble materials. Privileged surroundings: Located in a quiet residential area, surrounded by nature and perfectly connected to the center of Malaga and the coast. Ideal for those looking to live with calm, quality and style, without giving up the proximity to the city. Only 9 km from the center of Malaga 16 km from the airport 12 km from La Misericordia Beach Close to golf courses, wellness centers and leisure areas. León 3 is not just a house, it is a way of living: bright, practical and in harmony with the landscape.

Responsive image
0m²
Responsive image
2
Responsive image
1
Responsive image
no
Responsive image
0m²
Responsive image
2
Responsive image
1
Responsive image
no

Slaapkamers: 2

Badkamers: 1

Woonoppervlak: 0m²

Leefruimte: 36m²

Zwembad: no

Tuin: yes

Parking: no

Cooling:

Opslagruimte:

Lift:

Bouwjaar: 2026

Verdieping: Nee

GEBIED
Category: Bargain, Cheap, Distressed, Investment

AANVRAAG MEER INFORMATIE

Vul het onderstaande formulier in om meer informatie over deze nieuwe ontwikkeling te ontvangen. (* zijn verplichte velden)

U kunt ook contact opnemen met het kantoor via e-mail or phone:
+34 952 830 378 / +34 677 670 480

STUUR ONS EEN BERICHTJE


Vergeet niet om akkoord te gaan met ons privacy beleid



Alternatieven

[alt]

Te koop Vrijstaande Villa Costa Del Sol Cómpeta € 470.000,-

Prijs € 470.000,-

Meer informatie
[alt]

Te koop Vrijstaande Villa Costa Del Sol La Duquesa € 490.000,-

Prijs € 490.000,-

Meer informatie

Nieuwbouw Spanje maakt gebruik van cookies. Klik hier voor meer informatie. Sluit
x